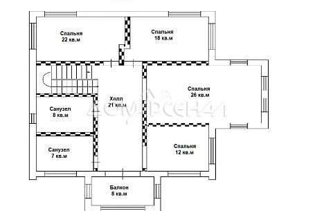
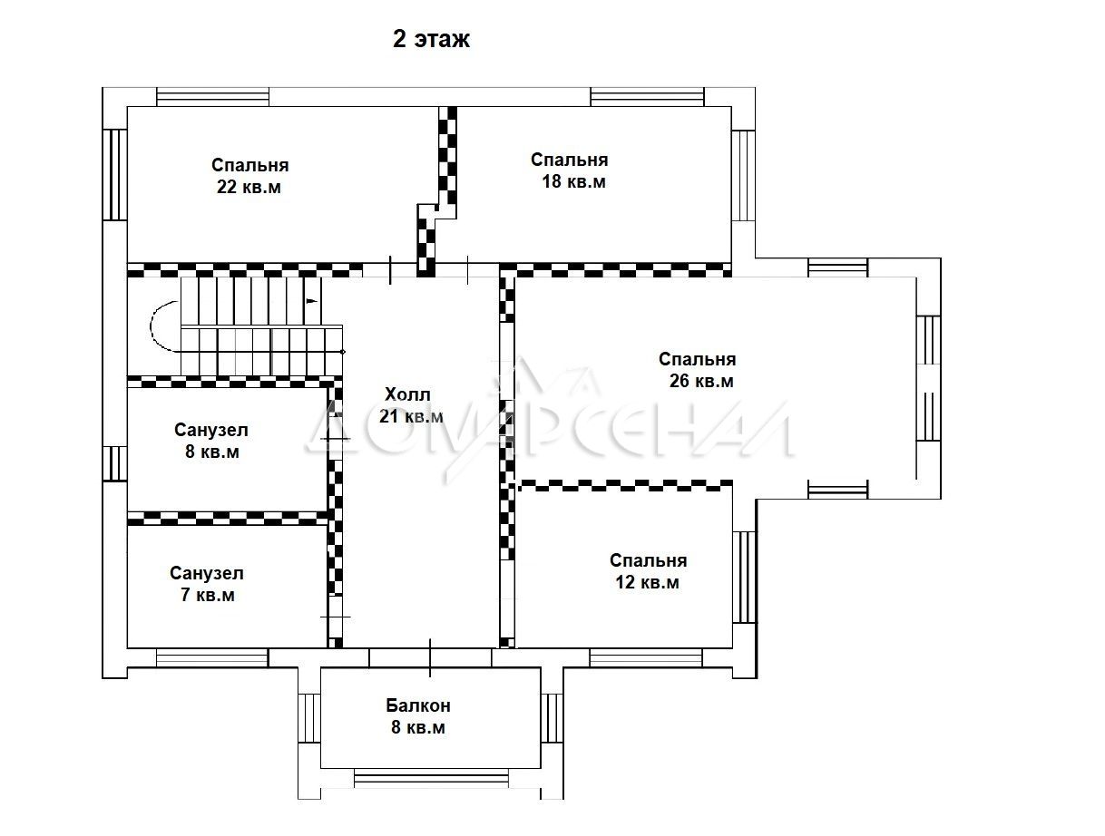
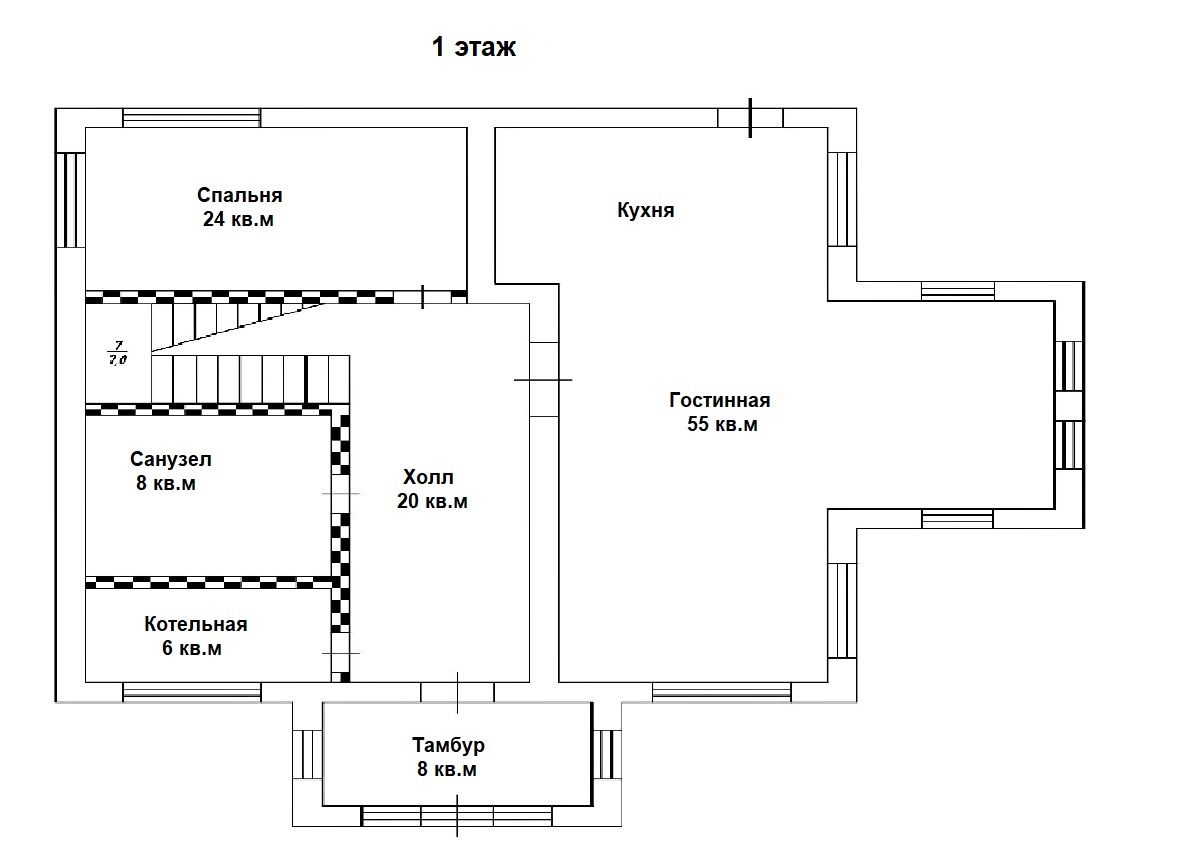
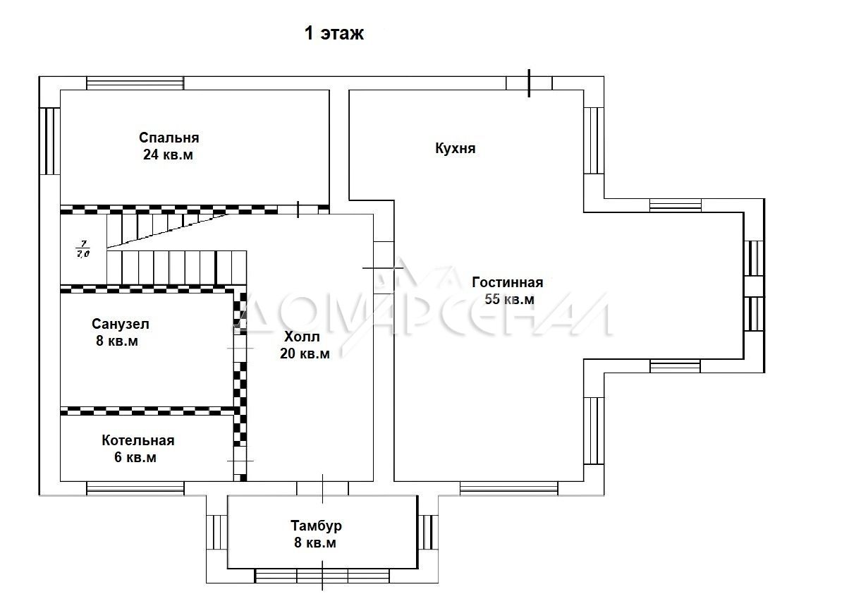
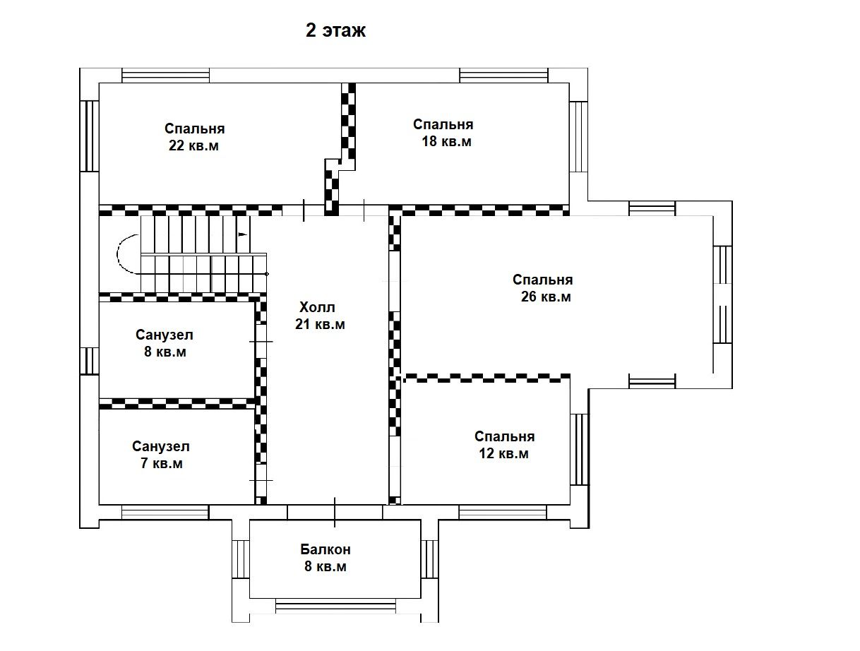
Площадь дома: 274 м2
Площадь участка: 9 сот.
ЦЕНА СНИЖЕНА
- Современный дом постройки 2024 года полностью с мебелью и техникой
- Функциональная планировка, панорамные окна, высокие потолки
- Жилая комната на первом этаже, теплые и светлые оттенки в интерьере
- Участок правильной формы, взрослые декоративные деревья, ухоженный газон
- Навес для двух авто, просторная вымощенная площадка перед домом
- Развитая городская инфраструктура в шаговой доступности
- Въезд на территорию поселка осуществляется через КПП по пропускам, круглосуточная охрана и видеонаблюдение по периметру поселка
- Территория поселка окружена лесным массивом и граничит с рекой Варваркой, вдоль русла которой обустроена прогулочная зона
- Для жителей поселка обустроены: детская площадка, открытая спортивная площадка и гостевая парковка
- В 3 км от поселка развитая инфраструктура района Южное Бутово и поселка городского типа Воскресенское с школами, детскими садами и медицинскими учреждениями
- В 10 минутах школа "Летово" для одаренных детей
- Дом отдыха "Воскресенское" с организованным пляжем на реке Десна











































