- Локация: охраняемый посёлок бизнес‑уровня, тихая улица рядом с лесом — чистый воздух и уединение
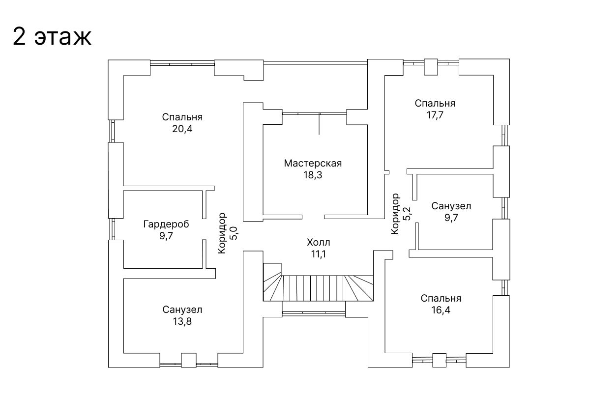
- Уникальная планировка: две жилые комнаты на первом этаже — редкое и удобное решение для семей
- Функциональность: продуманное зонирование, много мест хранения
- Готовность: дом полностью готов к проживанию, не требует ремонта и дополнительных вложений
- Участок: красивый ландшафтный дизайн, зоны отдыха, ухоженная территория, утопающая в зелени
Посёлок — это не просто место для жизни, а полноценная среда для развития всей семьи, где комфорт сочетается с возможностями для образования и активного отдыха.
Образовательная инфраструктура сосредоточена вокруг начальной школы:
- Полупансион позволяет родителям гибко планировать день: дети могут оставаться в школе до вечера.
- Усиленная языковая программа: с 1‑го класса — 7 часов английского языка в неделю, со 2‑го класса добавляется изучение китайского языка.
- Разностороннее развитие: в школе работает множество секций: робототехника, программирование, рисование, хореография — каждый ребёнок найдёт занятие по интересам.
- Спортивная база: в соседнем здании расположен современный гимнастический зал — отличное дополнение к физическому развитию детей.
- большой водоём — живописное место для прогулок и отдыха у воды;
- уютные беседки — идеальное пространство для встреч с соседями или семейного пикника;
- многофункциональная спортивная площадка — для игр в футбол, баскетбол и других активностей;
- высококачественная детская площадка — безопасная и увлекательная зона для малышей;
- зимой на территории заливают каток — ещё одно место для активного зимнего досуга.
Посёлок удачно расположен в зоне развитой инфраструктуры — всё необходимое для комфортной жизни находится в шаговой или короткой транспортной доступности.
Образовательные учреждения:
Частный детский сад «Детская страна» — один из лучших в районе: продуманная программа развития, заботливый персонал и комфортные условия для малышей.
Государственная школа и детский сад № 1391 — надёжная муниципальная инфраструктура для обучения и воспитания детей разных возрастов.
В посёлке Первомайский (вблизи):
Магазины — всё для повседневных покупок: продукты, товары первой необходимости и многое другое.
Аптеки — быстрый доступ к медикаментам и консультациям фармацевтов.
Салоны красоты — парикмахерские, косметологические кабинеты и SPA‑салоны для заботы о внешнем виде и отдыхе.
Шиномонтажи — удобное обслуживание автомобилей: сезонная замена резины, мелкий ремонт и консультации.
Рестораны — несколько заведений на выбор для семейных ужинов, встреч с друзьями или праздников.
Отдых и природа:
- Елизаровское озеро с пляжной зоной — всего в нескольких минутах от посёлка. Летом здесь можно купаться, загорать, устраивать пикники у воды, а в другие сезоны — наслаждаться прогулками и живописными видами.
Такая инфраструктура делает посёлок идеальным местом для жизни: здесь есть всё для работы, отдыха, воспитания детей и заботы о себе — без необходимости ехать далеко за пределы района.
Поселковые платежи: На это домовладение 15 600р































