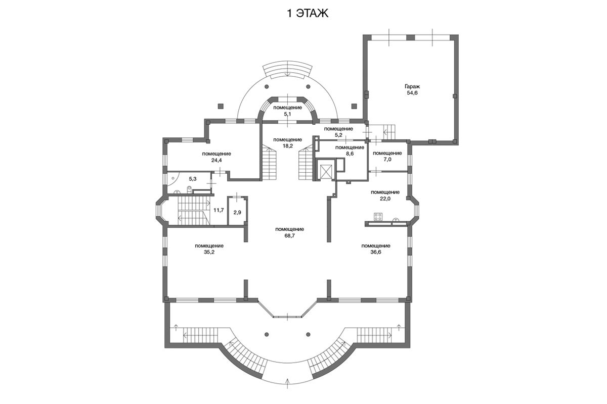
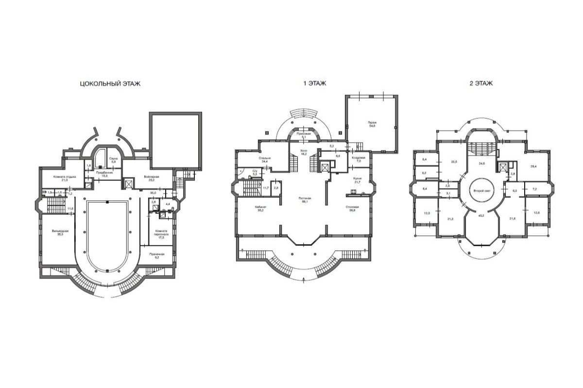
Площадь дома: 855.4 м2
Площадь участка: 21.3 сот.
- Проект Альмерия
- Фундамент- монолитная плита
- Возведены межкомнатные перегородки, лестницы
- Разведено отопление, установлены: радиаторы, газовый котел, счетчики (газ, вода, электричество)
- Проведены: интернет, ТВ, пожарная сигнализация
- В гараже установлены автоматические ворота (секционные 2,8х2,5 с низким подъемом)
- Входная группа, терраса, балконы облицованы керамической плиткой, установлены кованные ограждения
- Скидка на ипотеку 0,7%
- Территория поселка полностью благоустроена, организованы детские и спортивные площадки, высажены деревья, кустарники и газоны
- На территории поселка работает: минимаркет "Пятерочка", семейный ресторан «Апрель», аптека, лаборатория "Гемотест"
- Построена школа на 825 мест и детский сад "Ново-Никольская гимназия" на 150 мест
- Для автовладельцев предусмотрены парковочные места, на придомовой территории
- В пешей доступности функционируют: 3 детских сада, 2 школы, 2 амбулатории, 3 аптеки, более 8 продуктовых сетевых магазинов, 3 салона красоты, 2 физкультурно-оздоровительных комплекса, кофейня и пиццерия
- Достопримечательности: Усадьба Старо-Никольское и усадебный парк, Церковь Сошествия Святого Духа в Старо-Никольском, Интерактивный музей "Физическая кунсткамера" (Троицк), Экзотик парк
- Удобная транспортная доступность до станции метро "Саларьево"
















