Площадь дома: 457 м2
Площадь участка: 16 сот.
- Дом с привлекательной современной архитектурой и высоким качеством строительства, с отделкой под ключ, частично меблирован
- В планировке – просторные помещения и большая площадь остекления, что придаёт визуальную лёгкость интерьеру
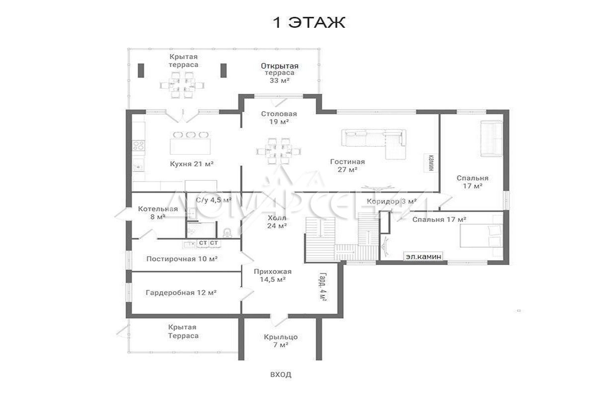
- В доме: высокие потолки, панорамное остекление в гостиной, кухне и столовой, камин в гостиной, 2 террасы на 1-м этаже и 3 террасы на 2-м этаже (общая площадь террас – более 100 кв.м), 6 спален (2 из них – на 1-м этаже)
- Дом стоит на благоустроенном участке с садово-парковым ландшафтом
- Построен сруб из оцилиндрованного бревна с баней, гостиной, кухней и террасой
- Участок расположен в прекрасной локации: в тихой непроезжей части охраняемого коттеджного посёлка в экологически чистом районе Новой Москвы в 100 м от реликтового леса и в 50 м от реки Пахра, которая окружает участок с обеих сторон
- Магазин и остановка общественного транспорта при въезде в поселок
- Инфраструктура п.Щапово, г.Троицк, г.Подольск





































