Площадь дома: 200 м2
Площадь участка: 5 сот.
- Уютный кирпичный дом в известном сложившемся КП, с полным инженерным оснащением, централизованные коммуникации
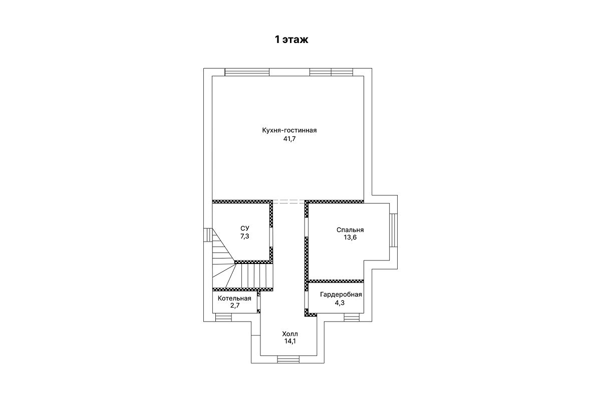
- Полностью готов к проживанию, с мебелью, площадь дома 176 кв.м + 24 м терраса и хозблок
- Год постройки 2019
- Для семейных вечеров и завтраков - открытое пространство: зона кухни, столовой, гостиной
- Четыре полноценных спальни (одна на 1 этаже и 3 на втором): мастер с гардеробной и ванной, спальня/кабинет с гардеробной и детская, плюс санузел с душевой кабиной
- Благоустроенный, озелененный участок с системой автополива
- Хозблок и навес на 2 автомобиля со станцией для зарядки электромобиля
- Установлено видеонаблюдение, система охраны Гольфстрим, установлены датчики протечек, дыма
- На территории поселка - прогулочные зоны, детская и спортивная площадки, оборудованное пространство вокруг прудов, выход в лес
- На въезде в поселок расположено несколько магазинов (Дикси, Винлаб, точки по продаже овощей и фруктов, быстрого питания), пункты выдачи маркетплейсов
- Поселок расположен в нескольких километров от г. Троицка, поселка Марьино и огромного микрорайона Новые Ватутинки с обширной инфраструктурой
- Здесь есть всё, что закрывает каждодневные потребности: детские сады и школы, магазины, спортивные, культурные и досуговые организации, кафе, салоны красоты, аптеки, медицинские учреждения. В 5-10 минутах - большое разнообразие как частных, так и государственных школ: Уникум, Путь к успеху, гимназия №6 и гимназия им. Пушкова и другие
- В ближайший год в стороне от КП завершится очередной этап строительства Новомихайловского шоссе, что позволит добираться до метро и МКАД еще быстрее, от дома до автобусной остановки 1 км































