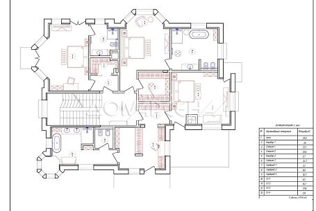
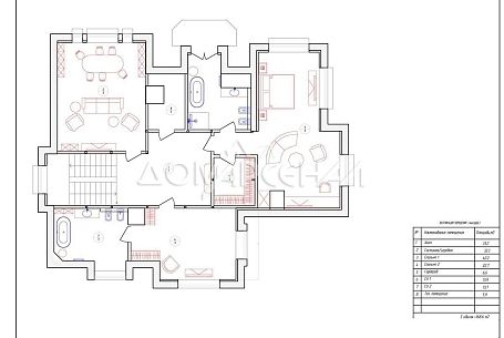
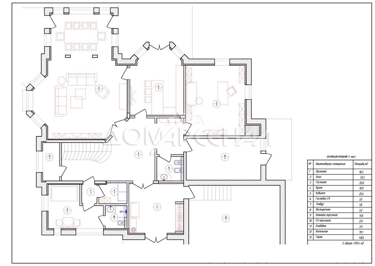
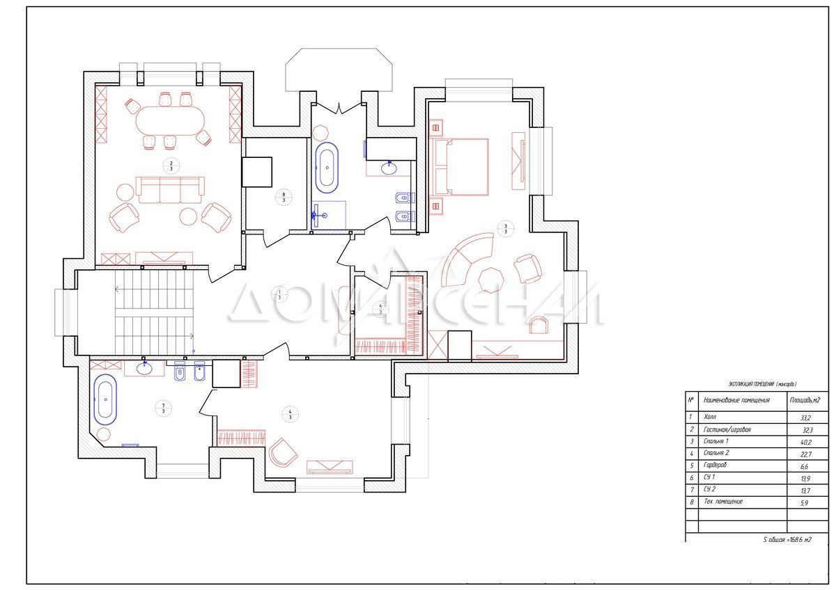
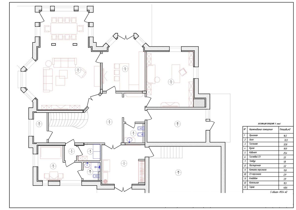
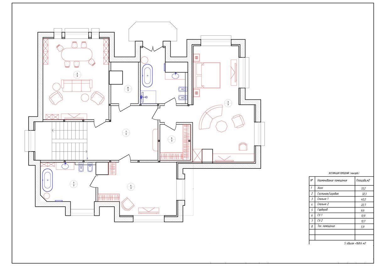
Площадь дома: 639 м2
Площадь участка: 21 сот.
- Проект Триер с гаражом на 2 а/м расположен в прилесной части поселка
- Особняк построен в традиционном нормандском стиле "коломбаж" – дома такого типа сегодня можно встретить в старинных французских городах.
- Архитектура дома имеет сложную геометрию, обусловленную наличием балконов и эркеров.
- Поселок расположен в лесном массиве на берегу озера
- Инфраструктура поселка уникальна, побывав однажды, Вы непременно захотите вернуться сюда снова, лучшее место для того чтобы отдохнуть и набраться сил для новых побед!
- Отдельное восхищение создателю поселка и команде воплощавших мечту в реальность!
- К услугам жителей есть все необходимое — рестораны, магазины, зоны отдыха, открытый и закрытый бассейны, пляж, прогулочные катера, спортивные и детские площадки, детский центр, фитнес-центр, роскошная SPA-клиника, банный комплекс, магазины, автозаправка с мойкой и настоящая жемчужина — ресторан-дворец с зимним садом и террасами
- Безопасность жителей поселка осуществляет централизованная служба безопасности, территория огорожена
- Въезд осуществляется через КПП, ведется видеонаблюдение
- Удобное транспортное сообщение - ж/д станция, общественный транспорт до м. Кунцевская
- Инфраструктура г. Одинцово, микр. Лесной городок


































