Площадь дома: 310 м2
Площадь участка: 13 сот.
- Вилла Гестия – Ваша весенняя сказка!
- В 40 минутах езды от Москва Сити вас ждёт абсолютно новый, технологичный фахверковый дом 310 кв.м на монолитной плите, с железобетонным межэтажным перекрытием и каменными межкомнатными стенами
- Абсолютно все городские коммуникации подключены к дому
- Благодаря стеклянным от пола до потолка стенам (энергоэффективные закалённые стеклопакеты), ваши ели и дубы становятся полновластными участниками интерьера, а безбарьерная среда усиливает эффект присутствия
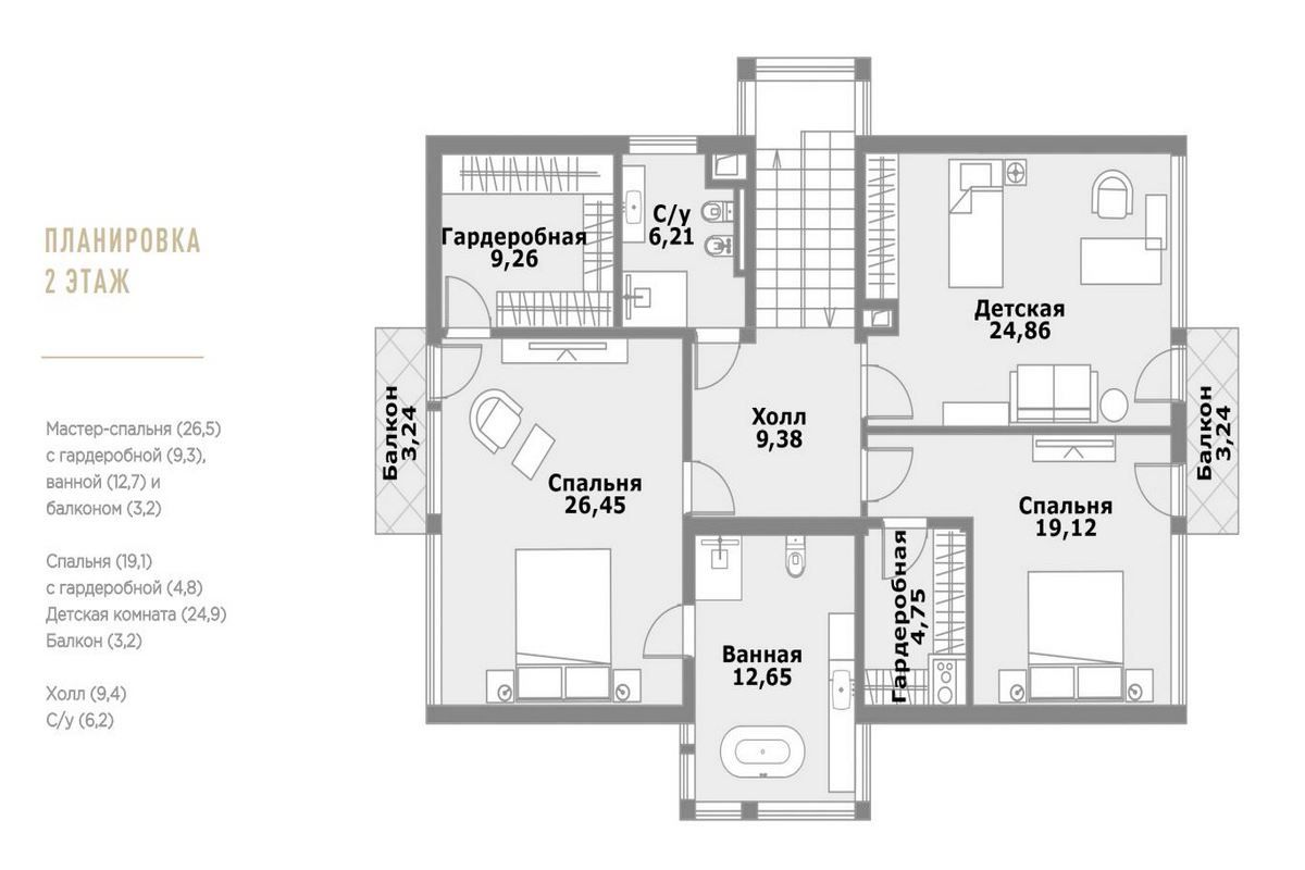
- 4 спальни, 3 гардеробные, 3 санузла, постирочная и т.д
- Под конкретного клиента дом может быть полностью домеблирован (всё проработано дизайнером)
- Коттедж с высококачественной отделкой в окружении леса может стать вашим!
- Поселок "Зеленая Роща-1" располагает центральными коммуникациями со своей службой сервиса
- В скором времени в поселке откроется частная школа
- На территории детские и спортивные площадки, детский развивающий центр, салон красоты аптека, магазины, авто-мойка, автосервис, ресторан, спортивный комплекс (большой теннис, тренажерный зал, футбол), ветеринарная служба, православный храм, хоккейная площадка
- Есть выход в парк "Патриот": катки, карусели, творческий центр, музеи, игровые площадки, катание на квадроциклах, лайках. Есть веревочный городок, планируется строительство горнолыжного спуска и аквапарк































