Площадь дома: 310 м2
Площадь участка: 13 сот.
- Абсолютно новый технологичный коттедж 310 кв.м, построенный по немецкой технологии фахверк на лесном приватном участке в поселке со всеми центральными коммуникациями в 34 км от МКАД по Минскому шоссе
- Отличительной особенностью проекта являются панорамные окна от пола до потолка, высокие потолки, каменные межкомнатные стены, монолитное межэтажное перекрытие и как следствие - отсутствие «торчащих» батарей
- В проекте реализована безбарьерная среда, а благодаря полностью стеклянным стенам, достигается эффект единения с природой
- Холодная кровля в стиле Райта добавляет особенную изюминку и избавляет от опасных для детей сосулек
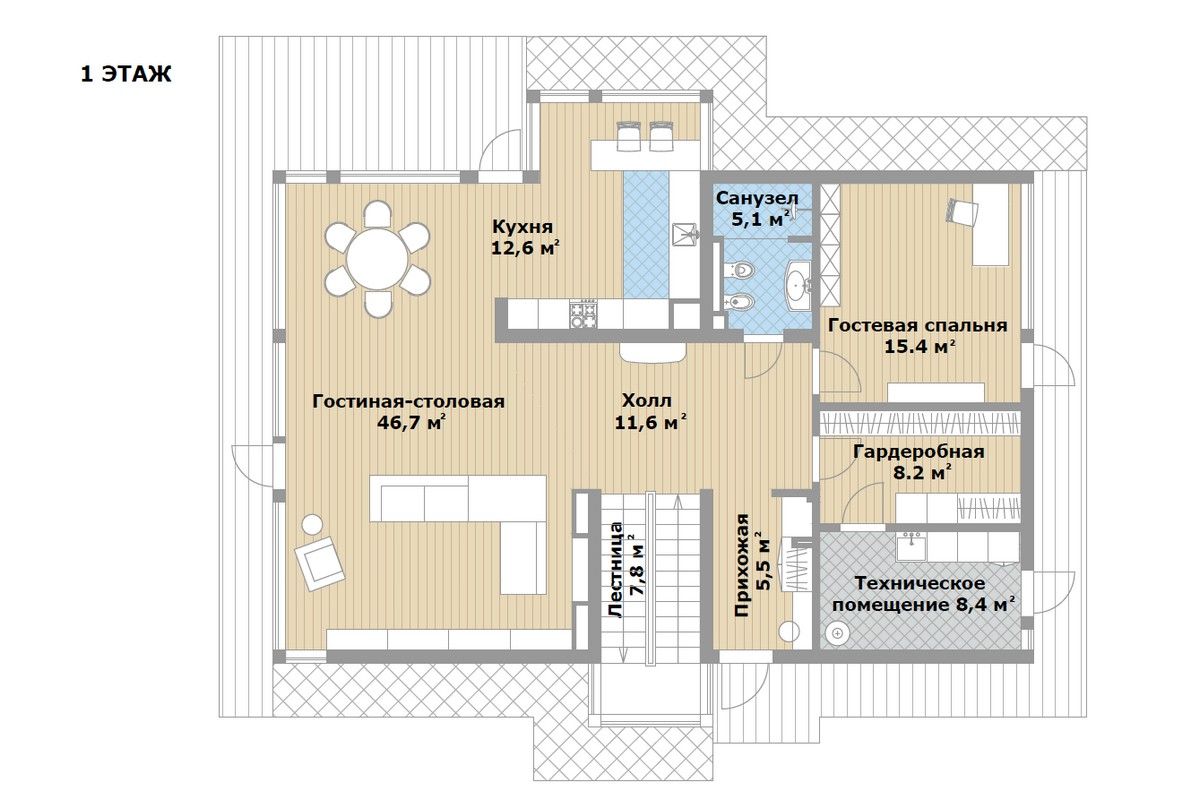
- В доме 4 спальни, включая мастер-спальню 26 кв.м с панорамной ванной, гардеробной и балконом, объединенная кухня-столовая-гостиная, просторное патио, кабинет / спальня с собственным выходом на участок, 3 гардеробных и 3 санузла
- Выполнена авторская отделка с применением трендовых материалов
- Под конкретного клиента дом может быть полностью домеблирован (всё проработано дизайнером)
- Современные инженерные системы и оснащение (Buderus, Rehau, Meibes, Shuco, Valtec, Kentatsu, Aerial, Asko и др.) обеспечивают комфорт
- Охраняемый поселок со своей службой сервиса
- В поселке детские и спортивные площадки, Православный храм, детский сад, детский развивающий центр, салон красоты, магазины, аптека, автомойка, автосервис, ресторан Кинто и Семейное кафе, спортивный комплекс (большой теннис, тренажерный зал, футбол, баскетбол), ветеринарная служба, хоккейная площадка, шикарная асфальтированная дорога протяженностью в 10 км для велопрогулок и катания на роликах и т.д.
- Также поселок имеет свой выход на территорию парка Патриот (самый большой каток в Европе, музейно-храмовый и конно-спортивный комплексы, отель Cosmos Hotels со СПА-комплексом с бассейном, центр военно-тактических игр и многое-многое другое для активного отдыха!)
- Перед КПП поселка сетевой супермаркет и ВкусВилл
- Маршрутка до ж/д ст.Голицыно (остановка у КПП поселка)
- Одна из лучших в Подмосковье транспортная доступность: без пробок 40 мин до Москва-Сити через Северный объезд Одинцово и проспект Багратиона



























