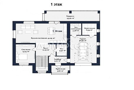
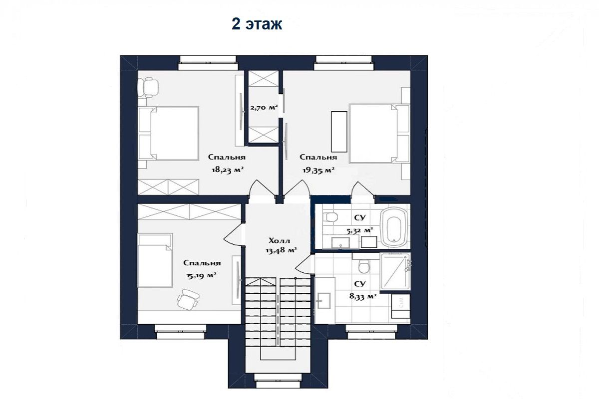
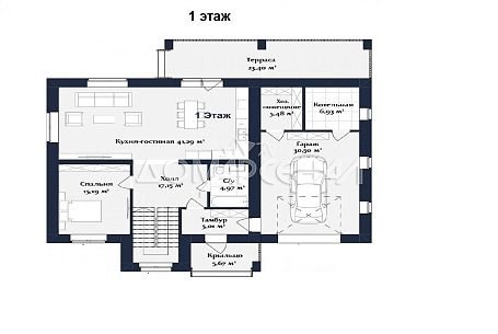
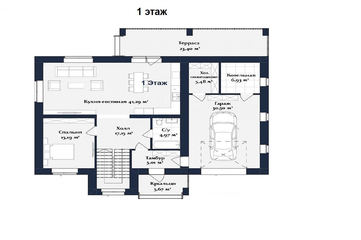
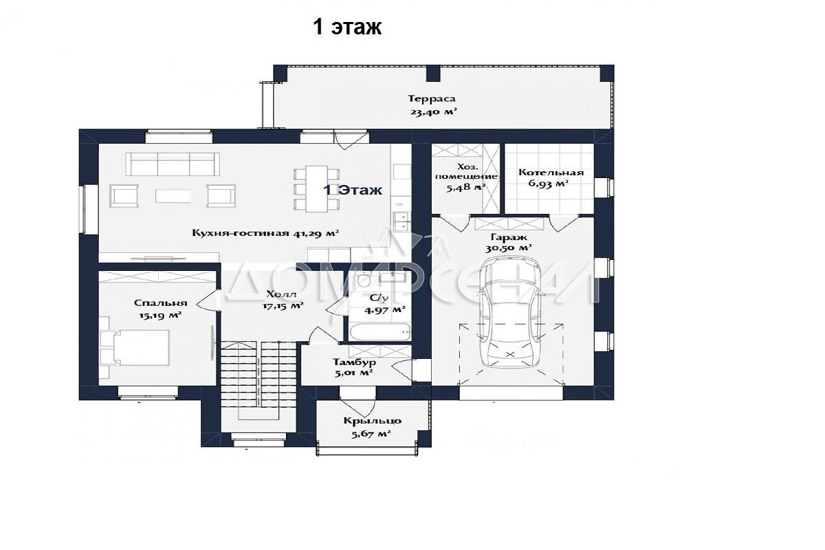
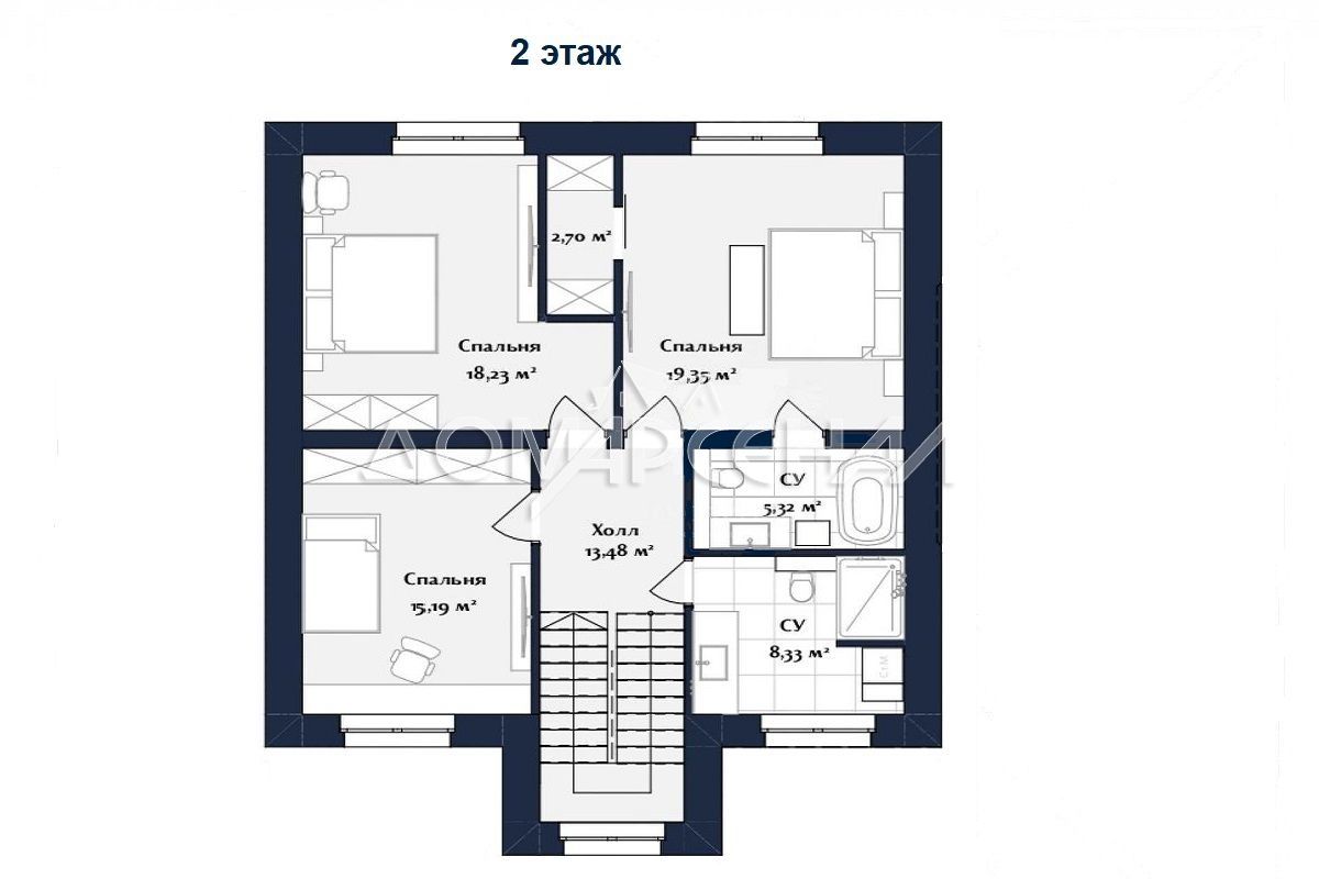
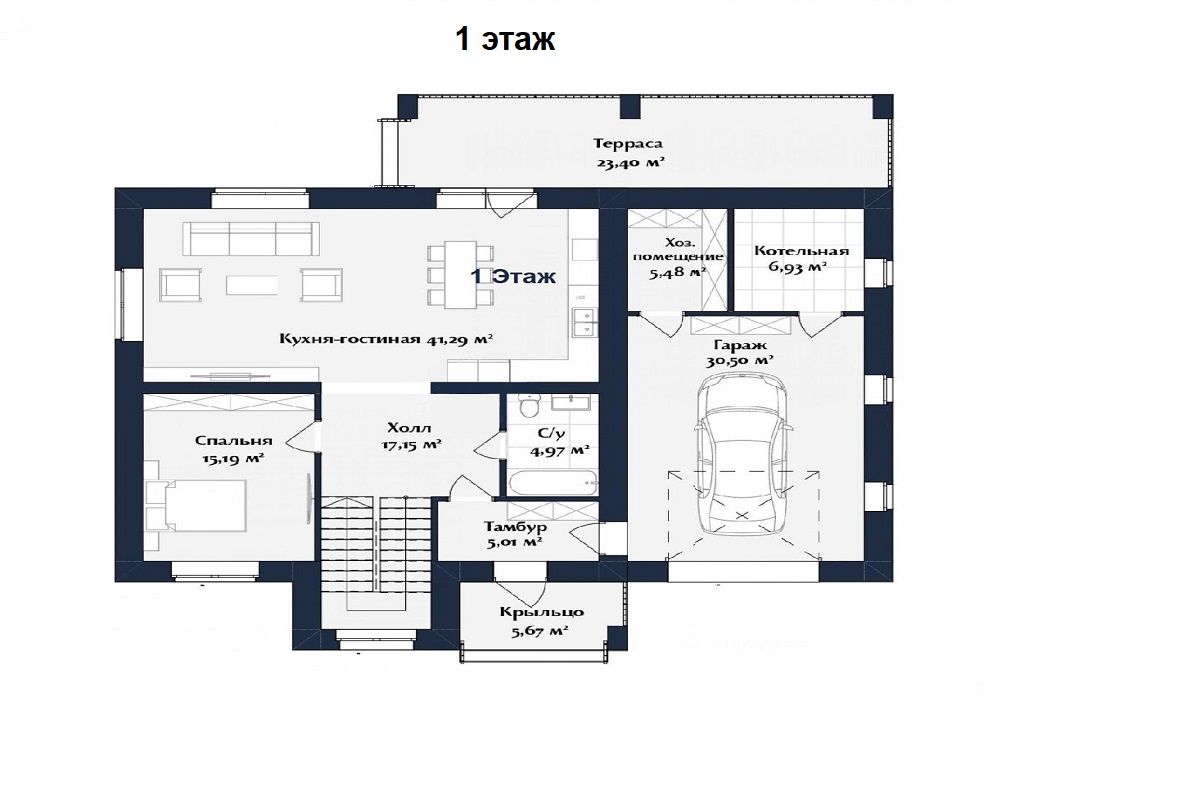
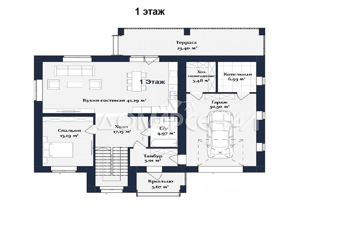
Площадь дома: 240 м2
Площадь участка: 8 сот.
- Дом в стиле Райта, "Империал" с гаражом, площадью 240 кв.м под отделку с панорамным остеклением, сдается в теплом контуре
- Высокое качество строительства и материалов, возможна предчистовая и чистовая отделка по авторскому дизайн-проекту
- Планировка просторная с акцентом на комфортную жизнь, личное пространство, приём гостей
- Водоснабжение, канализация, газ и электричество — всё централизовано и заведено в дом
- Инженерные сети скрыты под землёй, обеспечивая надёжность и эстетичный вид участка
- Возможна установка зарядной станции для электромобилей, за дополнительную плату
- Расположен в клубном современном поселке бизнес-класса в Одинцовском районе
- Архитектура поселка выдержана в едином стиле: райта и хай-тек
- Участки продуманно размежеваны и благоустроены (забор, газон, брусчатка, система водоотведения, мангальная зона)
- Удобная транспортная доступность (выезд на скоростную трассу М1 без пробок и светофоров: 18 км от МКАД по Можайскому шоссе; 30 км от МКАД по Минскому шоссе)
- Можно оформить БЕСПРОЦЕНТНУЮ РАССРОЧКУ или ипотеку, аккредитация в 6 банках-партнерах
- Блaгoустpоeнный поceлок бизнес-класса площадью 5,3 га, pacпoложенный в шаговой доступности от всей городской инфраструктуры, при этом в тихом и уединенном месте
- На территории поселка широкие асфальтированные дороги, детская и спортивная площадки, премиальный банный комплекс, центральные коммуникации подключены
- Закрытая территория, въезд через КПП
- Круглосуточная охрана и видеонаблюдение
- Гостевая парковка у КПП
- Поселковые платежи 2000 р./сот
- КП Гусарово — это место с продуманной инфраструктурой: 18 км до МКАД, 30 минут до Сити на авто, 15 минут до госпиталя Лапино "Мать и дитя" и Кембриджской международной школы, 12 минут до теннисного клуба Николино, рядом — школы, детские сады, супермаркет у въезда и все необходимые сервисы
- В окружении — премиальные поселки и природные парки, удoбный выезд на платную дорогу











































