Площадь дома: 240 м2
Площадь участка: 7.53 сот.
- Абсолютно новый дом с современным ремонтом
- Год завершения отделочных работ - 2024
- Фундамент - монолитная плита
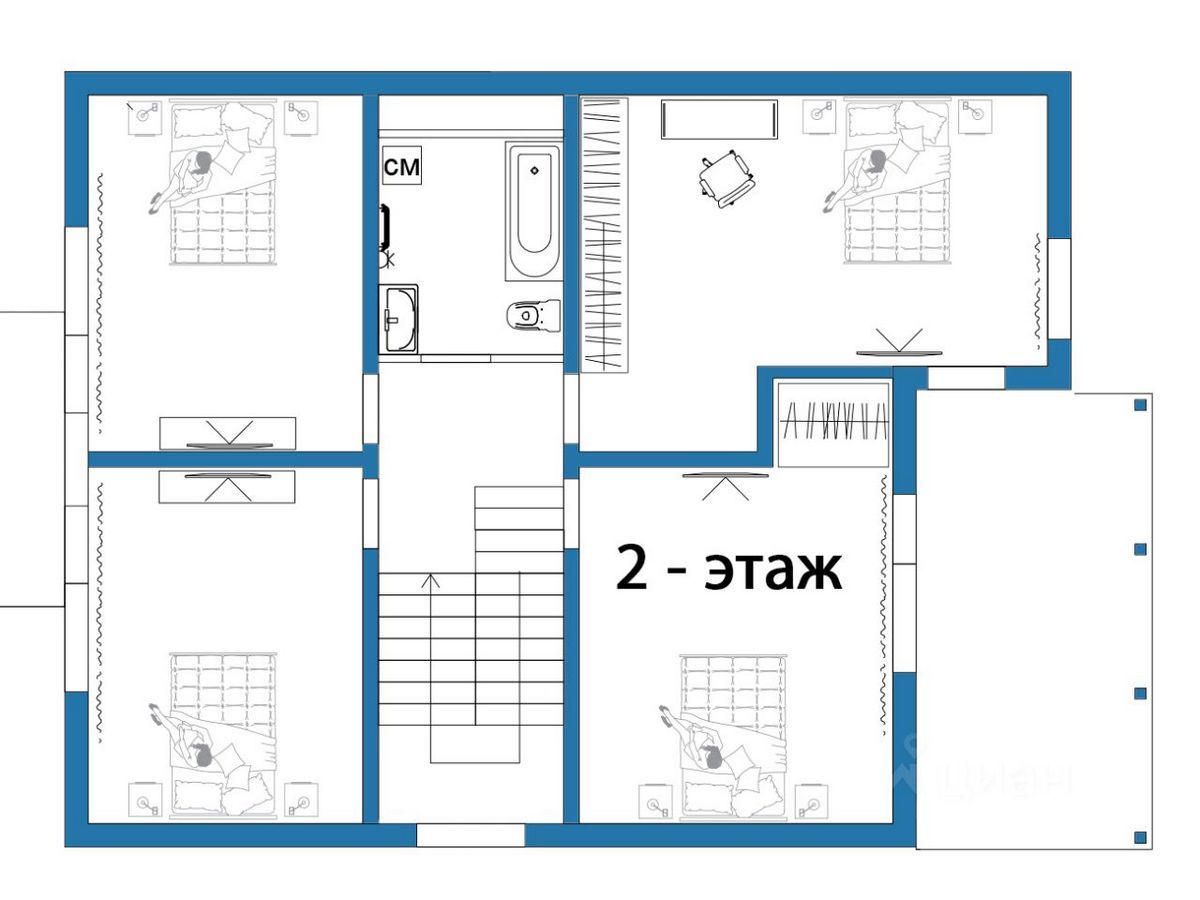
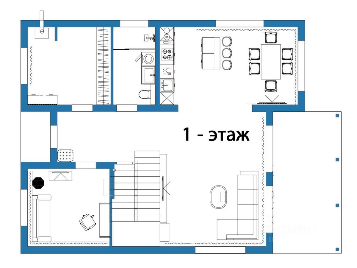
- Продуманная планировка
- Кухня-гостиная в едином пространстве с панорамными окнами и выходом на веранду
- Полы 1-го этажа и во всех с/у с водяным подогревом
- Монолитная лестница обшита деревом с удобным шагом
- Полностью оборудованная котельная
- Установлен газовый котел «Buderos»
- Все коммуникации центральные
- С террасы и балкона открывается красивый вид на лес
- Обжитой зеленый поселок со своим озером в окружении леса
- Ландшафт поселка сочетает лесной массив и прибрежную зону озера в густом лесу
- Обустроена зона отдыха, спортивные и детские площадки
- Рядом инфраструктура г. Троицка и п. Красное (ТЦ, больница РАМН, школа искусств, муниципальные и частные школы, детские сады, спортивные комплексы, рестораны и мн. др.), недалеко школа Ника, курорт АМАКС Красная Пахра, Конно-спортивный комплекс Пегас, рестораны МОРЕМАНИЯ, Калужская Застава, Наш Бараш, зона отдыха с рыбалкой Золотой Сазан
- КП строго охраняем (два КПП, круглосуточное патрулирование, система видеонаблюдения, въезд по пропускам)
- Комфортные подъездные пути к поселку, высокое качество дорог
- Удобная транспортная доступность: общественный транспорт до г. Москва, г. Троицк, г. Подольск




































