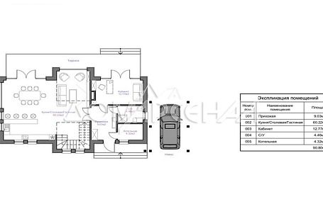
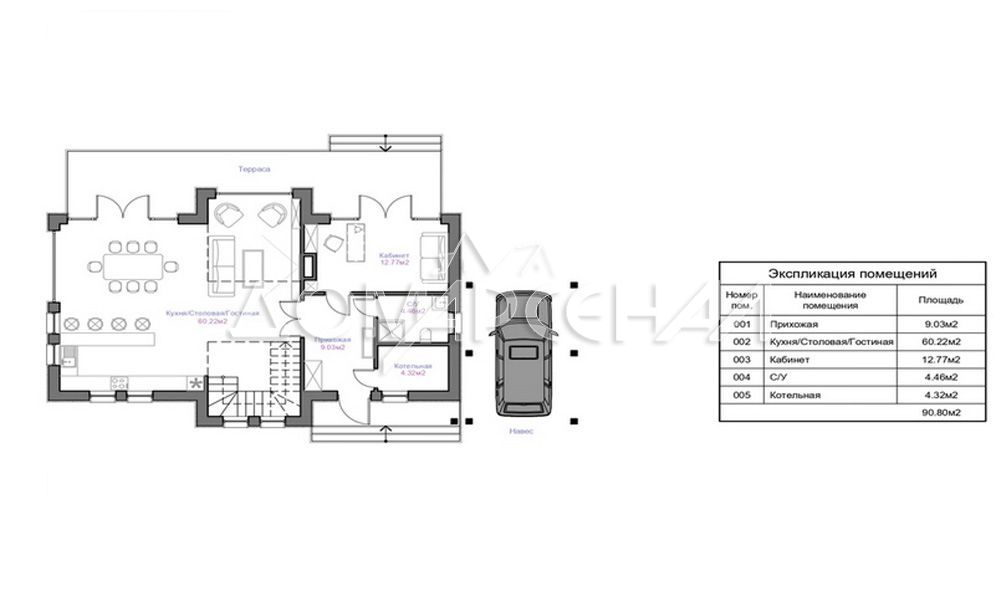
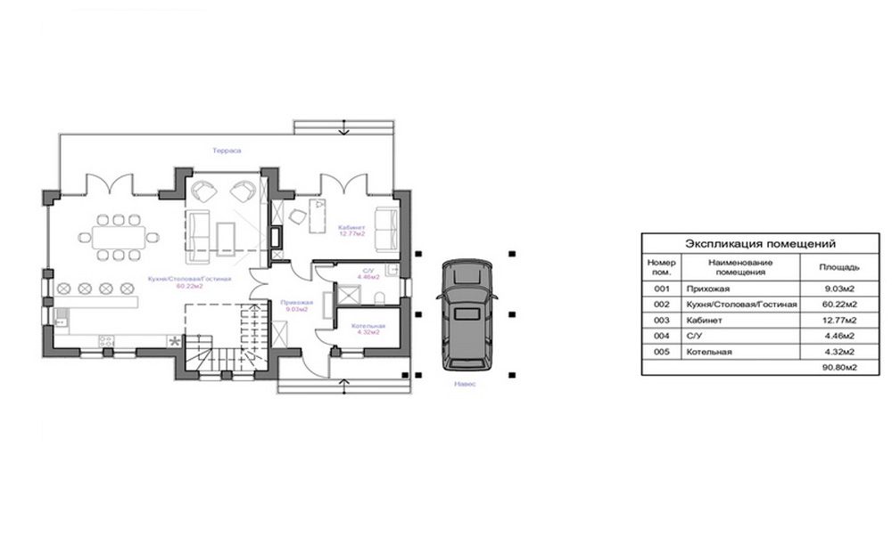
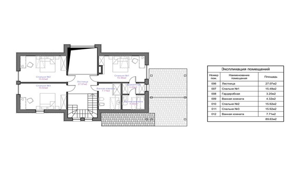
Площадь дома: 180 м2
Площадь участка: 6 сот.
- Год постройки: 2023
- Год ввода в эксплуатацию: 2023
- Современный коттедж с новым уровнем комфорта загородной жизни
- Дом построен из качественных материалов
- Панорамные окна в пол
- Участок выровнен по рельефу и застелен рулонным газоном
- Красивый, современный поселок с центральными коммуникациями
- Предоставляется скидка 0,7% на ипотеку
- Красивый, современный поселок с центральными коммуникациями, широкими внутри поселковыми дорогами, вымощенными брусчаткой
- На территории поселка предусмотрена уникальная инфраструктура: детский сад, фитнес-центр, ресторан, супермаркет, автомойка, каток, спортивные и детские площадки, досуговый центр
- Прогулочный бульвар с фонтаном протяженностью 1 км и лесопарковая зона 15 Га
- Поселок окружен лесом природного заказника «Дубровицкий лес», в зимнее время функционирую лыжные трассы
- В пешей доступности от поселка река Пахра
- В пяти минутах от поселка расположены: школа детский сад, магазины, аптеки, банки. Остановка общественного транспорта до г. Подольск, до м. Ольховая, Коммунарка, Теплый стан
- Поселковые платежи: 9 500 р.






















